高效过滤器计数法检漏仪
FTK-310G

一、产品概述
FTK-310G高效过滤器计数法检漏仪是由28.3L大流量粒子计数器、手持式扫描采样探头、气溶胶发生器以及粒子稀释器四部分组成。FTK-310G是根据ISO14644-3 B.6.3及IEST-RP-CC034.2规范要求设计,专门用于高效过滤器的检漏,做为检漏仪主体的28.3L粒子计数器,配有7寸高清触摸彩屏和锂电池,操作过程简单方便。
FTK-310G采用计数法扫描检漏,通过粒子计数器和粒子稀释器的配合检测高效过滤器上游浓度,根据ISO14644-3标准的B.6.3计算式及过滤器的标示效率计算下游漏点值或根据渗漏率0.01%计算下游漏点值(两种模式可供用户选择),通过实际扫描检测高效过滤器下游漏点值并跟计算的漏点值进行比较,实现对高效过滤器的检漏。
二、产品特点
1、符合国内外标准;GB/T25915《洁净室及相关受控环境》的第三部分附录B.6.3详述了计数法扫描检漏的规程,GB50591《洁净室施工及验收规范》推荐检漏应优选计数扫描法;最新14644-3-2005标准中主推计数法检漏,强调了计数法检漏的优势;《洁净室高效过滤器应用指南》只建议用粒子计数法来做检测;符合EN1822、IEST-RP-CC001.3、C GMP、EU GMP相关要求;
2、计数法是读取颗粒物数量,粒子计数器灵敏度高,对气溶胶的浓度要求较低,精确检测的同时,也减少对高效过滤器和环境的污染;
3、粒子计数器有触摸屏、锂电池(可连续工作5小时)、打印机,操作过程简单方便,自动判断漏点值、泄露报警、现场自动打印;
4、大流量粒子计数器有两套软件,可一机两用;
5、气溶胶发生器是冷发,无需电源,可同时满足单片高效过滤器、小型机组和大型机组的检测;
6、可上门培训教学;
三、产品参数
1. 计数检漏仪(配有手持式智能扫描探头)
采样流量:28.3L/min
粒径通道:0.3,0.5, 1, 3, 5,10(μm)
测量重复性相对误差:≤±10% 最大计数浓度:3.5×104P/L
计数检漏仪与扫描探头智能通讯
扫描速度: 建议3~5cm/s
扫描探头与滤面间距:建议2cm~4cm
电源:AC220V 50Hz/DC17V(交直流两用)
尺寸:215*295*212mm(长*宽*高)
重量:6.5Kg

2. 气溶胶发生器(FTK-A5)
发生器类型:Laskin 6到12个喷嘴
压缩空气:3-18立方英尺每分钟流量在20psi下
气溶胶类型:冷态 多分散气溶胶粒径发布:0.3um-0.5um 集中度≥70%
气溶胶物质:DEHS(推荐)、PAO、DOP
尺寸:250*150*235mm(长*宽*高)
重量:3.6Kg
注:需要客户自行配置压缩气泵或气源
3. 粒子稀释器(FTK-D100)
稀释倍数:1: 100(@≧0.3um )
电源要求:不需要
稀释比控制方式:流量调节
尺寸:235*150*190mm(长*宽*高)
重量:2.55Kg
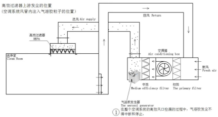
四、检漏流程
首先检查洁净室的环境,做好准备工作:
第一步:上游发尘

第二步:上游浓度测量

第三步:手动扫描检测


苏州PA视讯环境技术有限公司,已有7多年行业技术经验,专业生产仪器设备测试台,接受非标定制
售前售中售后客服、销售、技术一对一对接,给您完美体验。
标准仪器质量三包:7天包退,30天包换,1年质保,终身提供维修服务(非人为因素)
产品信息咨询:0512-65296560、18914054310

